Nieuwbouw
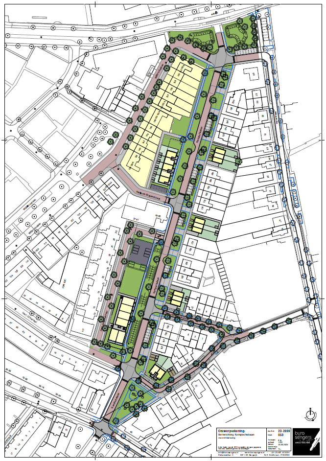
Rond de Hertogin Johannastraat / Kempischebaan in Valkenswaard willen we woningen slopen en er 41 woningen terug bouwen.
Soort woningen
41 woningen:
- 18 appartementen (63 m²)
- 9 eengezinswoningen (90 m²)
- 7 beneden- bovenwoningen (43-78 m²)
Omgevingsplan
TAM-omgevingsplan procedure gestart. Het ontwerp TAM-omgevingsplan wordt met ingang van 11 december 2025 gedurende zes weken ter inzage gelegd.
Omgevingsvergunning
Nog niet aangevraagd
Ontwerp & Artist impressions
Details
| Status | Nieuwbouw in voorbereiding |
|---|---|
| Waar | Hertogin Johannastraat, Valkenswaard |
| Aantal woningen | 41 |
| Soort woningen | Eengezinswoningen, boven- & benedenwoningen en appartementen |
| Woonoppervlak | 63 m², 90 m² en 43-78 m² |
| Aantal kamers | |
| Energielabel | |
| Verwachte start bouw | Begin 2027 |
| Verwachte oplevering | Medio 2028 |
| Aannemer | Nog niet bekend |