Nieuwbouw
Aan de Kapelledries in Bergeijk willen we 14 grondgebonden woningen bouwen.
Soort woningen
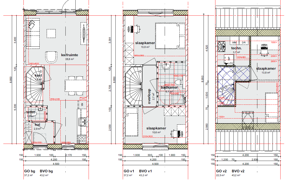
14 grondgebonden eengezinswoningen
Bestemmingsplan
Vastgesteld in mei 2024 (maar nog niet onherroepelijk)
Omgevingsvergunning
Aanvraag in 2025.
Ontwerp & Artist impressions
Details
| Status | Nieuwbouw in voorbereiding | 
|---|---|
| Waar | Kapelledries, Bergeijk | 
| Aantal woningen | 14 | 
| Woonoppervlak | 97 m² | 
| Aantal slaapkamers | 3 | 
| Energielabel | A+++ | 
| Verwachte start bouw | Eind 2025 | 
| Verwachte oplevering | Voorjaar 2026 | 
| Aannemer | Hurks |